housing portfolio/ project list

(SEE THE LIST BELOW OF ALL HOUSING PROJECTS, INCLUDING HIGH-RISE, CO-LIVING, MARKET-RATE, AFFORDABLE, SENIOR, & STUDENT HOUSING.)

Tacoma apartment tower:

Project Role/Description: Senior Designer/Architect for this 17-story apartment building as part of a phased development adjacent to the Tacoma Convention Center. . See ‘PORTFOLIO: FEATURED PROJECTS’ link above for more information. 2020

UNIVERSITY CROSSING:

Project Role/Desrciption: Senior Designer of this 26-story residential tower as part of a mixed-use design competition in Seattle, Washington. The tower included 10 levels of Co-Living & amenities, 9 levels of market-rate apartments, 2 levels of penthouse units, & 1.5 levels of retail, lobby, & amenities. See ‘PORTFOLIO: FEATURED PROJECTS’ link above for more information. 2020.

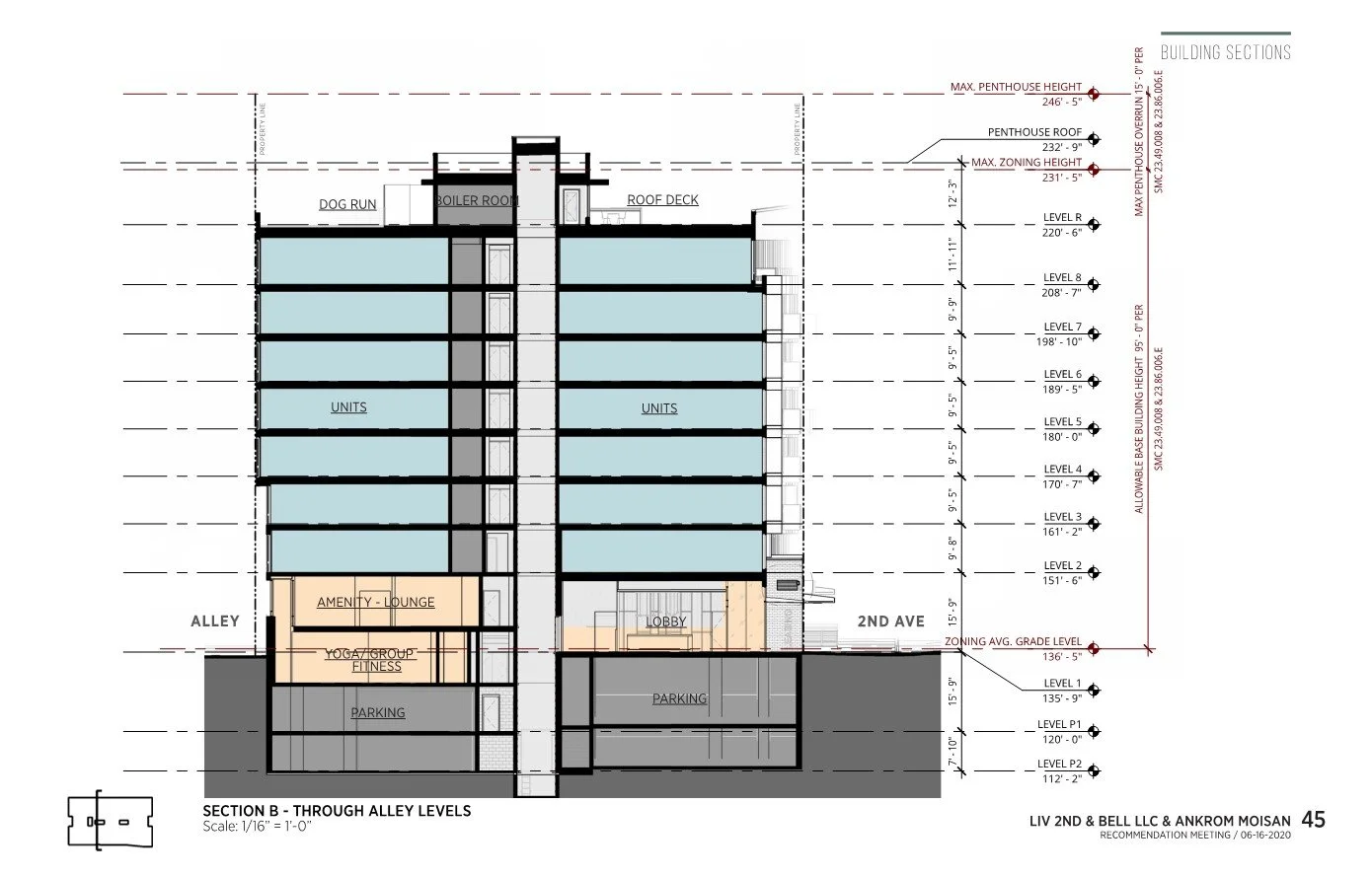
2ND & bELL:

Project Role/Description: Project Designer/Architect for this 8-story apartment building with funky retail at the street & alley frontages in the Beltown area near downtown Seattle. See ‘PORTFOLIO: FEATURED PROJECTS’ link above for more information. 2018-20

vik condos:

Project Role/Desrciption: Exterior detailing & Project Architect (6 months) of this 6-story condo podium building in Ballard area of Seattle, Washington. See ‘PORTFOLIO: FEATURED PROJECTS’ link above for more information. 2013.

lakeside apartments:

Project Role/Description: Co-Project Designer of this 3 building complex of 6-story apartment buildings forming a new downtown for Clearfield, Utah.

fleet block housing:

Project Role/Description: Project Designer / Urban Designer of several types of housing for this masterplan. One of the buildings was designed as a 6-story modular housing building. See ‘PORTFOLIO: FEATURED PROJECTS’ link above fore more information. 2015

Hyde square apartments:

Project Role/Description: Project/Architect / Designer for this large 600 unit, 6 building, apartment development of (4) 5 to 7 story podium residential buildings & 2 smaller amenity buildings. Bellevue, Washington. See ‘PORTFOLIO: FEATURED PROJECTS’ link above for more information. 2015-2019.

the standard:

Project Role/Desrciption: Exterior detailing for this twin tower student housing project in Seattle. 2020

burnside apartments:

Project Role/Desrciption: Project Designer of this 6-story apartment building in Portland, Oregon. See ‘PORTFOLIO: FEATURED PROJECTS’ link above for more information. 2016.

sole apartments:

Project Role/Description: Co-Project Designer/Architect for this 7-story 500 unit apartment building located facing Interstate 15 between Draper and Lehi, Utah . 2021

mida military housing:

Project Role/Desrciption: Co-designer of this military recreation housing. See more information in the ‘FEATURED PROJECTS’ section. 2025.

harborview apartments:

Project Role/Desrciption: Exterior designer of this 6-story apartment building along the shores of Elliott Bay on the West Seattle side. 2020.

touchmark condos:

Project Role/Description: Exterior detailing & design refinement of this twin 10-story condo development on the northwest hills of Portland, Oregon. 2008.

Park City workforce housing rfp:

Project Role/Description: Project Designer of this 4-story work-force apartment building in Park City. This was also intended to be a Passive House project. We were shortlisted. 2021

9218 18th ave. sw:

Project Role/Description: Project Designer of this 5-story apartment building in southwest Seattle. I helped out towards the end of this for the preferred scheme out of 3 for the Early Design Guidance packet & presentation. 2020

tukwila village:

Project Role/Desrciption: Exterior detailer for (3) 6-story podium senior & affordable housing buildings & 1 community center. Tukwila, Washington. 2013.

Previous
Previous

HIGH-RISE

Next
Next

URBAN DESIGN/ MASTER-PLANNING